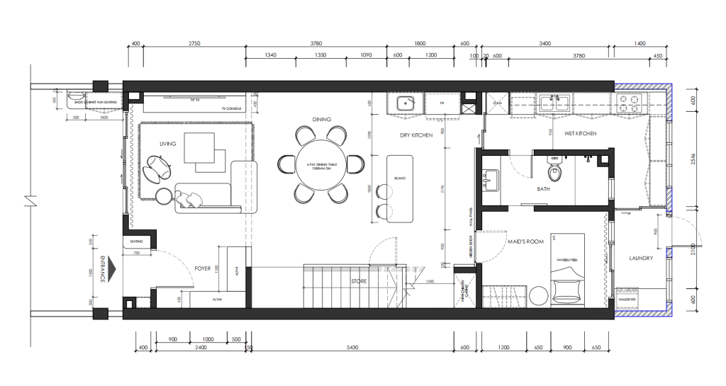
Published in: Site Visit Perling Residence, Taman Puchong Legenda Author cwengrenovation Published on: 2024-05-15 Jalan Perling 1/1, Bandar Puchong Jaya, 47100 Puchong, Selangor