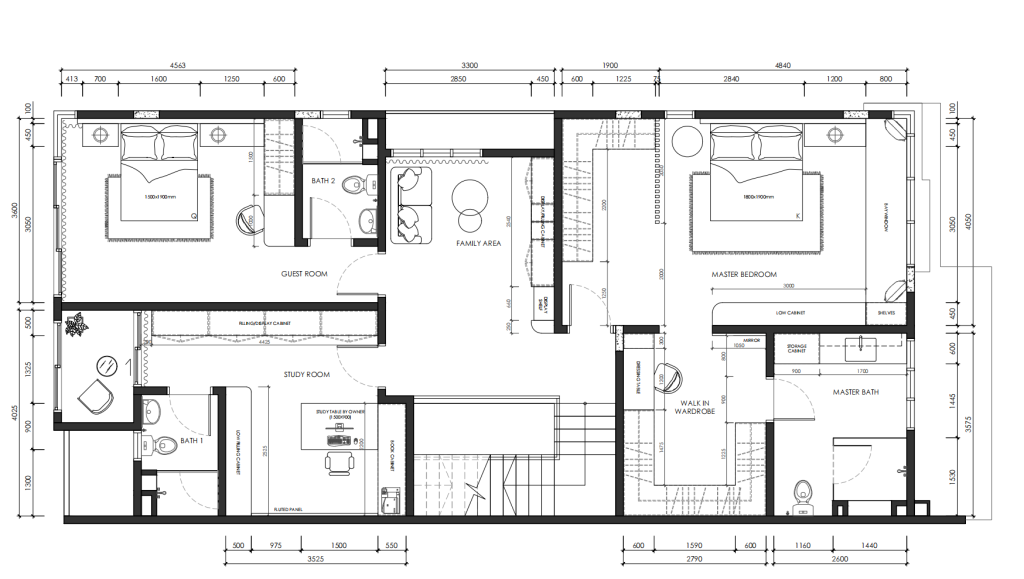
Published in: Site Visit Sejati Lakeside@Yuen Author cwengrenovation Published on: 2024-05-15 Persiaran Bestari, Cyberjaya, 47130 Cyberjaya, Selangor